Property Description
A well-kept home with a *SIDE ENTRANCE* in the sought-after Orchard at Ellerslie. Set on a 600+ m² corner lot, this property offers an urban-oasis feel that’s rare to come by in newer neighbourhoods. Fully landscaped and thoughtfully designed, the backyard is a true retreat—complete with an oversized deck, pergola, and established garden. Inside, the home features a modern kitchen with upgraded materials, 3 bedrooms plus a spacious bonus room on the upper level. Luxury Vinyl Plank flooring throughout adds warmth, durability, and low-maintenance appeal. A separate side entrance provides excellent future suite potential, making this home a smart option for investors or homeowners planning ahead. Located on a quiet crescent with minimal through traffic, this home offers peace, privacy, and a strong sense of community—all while remaining close to schools, parks, shopping, and major routes. A rare combination of lot size, functionality, and long-term value. (id:53430)
Building
- Property Type:
- Duplex
- Building Type:
- Duplex
- Year Built:
- 2023
- Bedrooms:
- 3
- Bathrooms (total):
- 3.5 (1 half)
- Basement:
- Unfinished, Full
Finished Areas
- Interior Size (Total):
- 1765 square feet
Interior
- Appliances:
- Washer, Refrigerator, Dishwasher, Dryer, Hood Fan
Parking
- Features:
- Attached Garage
Lot / Land
- Lot Size:
- 631.74 square meters
Fees & Dates
- Last Modified:
- 04/02/2026 06:20:36 PM
- Status Change:
- 04/02/2026 06:12:54 PM
Association / Ownership
- Common Interest:
- Freehold
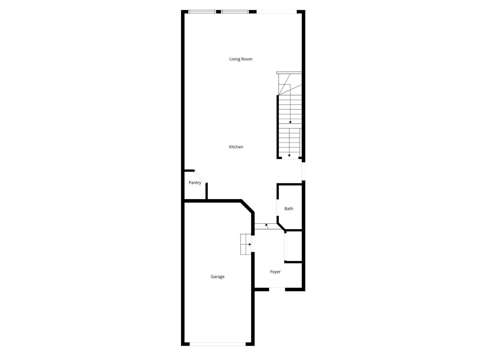
Room Dimensions
| Room | Level | Size |
|---|---|---|
| Living room | Main level | 4.47 x 3.78 |
| Dining room | Main level | - |
| Kitchen | Main level | 5.89 x 5.78 |
| Primary Bedroom | Upper Level | 4.12 x 4.53 |
| Bedroom 2 | Upper Level | 4.57 x 3.29 |
| Bedroom 3 | Upper Level | 3.81 x 2.77 |
| Bonus Room | Upper Level | 5.13 x 4.1 |
Location
Data is supplied by Pillar 9 MLS® System. Pillar 9 is the owner of the copyright in its MLS® System. Data is deemed reliable but is not guaranteed accurate by Pillar 9.
The trademarks MLS®, Multiple Listing Service® and the associated logos are owned by The Canadian Real Estate Association (CREA) and identify the quality of services provided by real estate professionals who are members of CREA. Used under license.